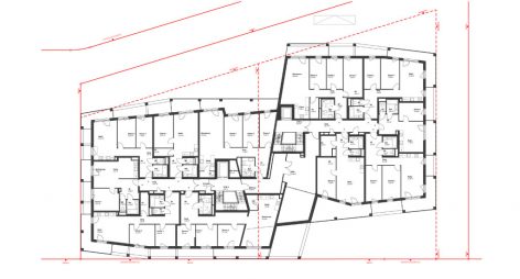
Durch Abrücken des mittleren Baukörpers vom südlichen Baukörper entsteht ein öffentlicher und zentraler Außenraum. Auf ihn münden die Haupteingänge und liegt der auch für die Nachbarschaft nutzbare Bewegungsraum sowie die hausinterne Bibliothek/Spieleraum und der Hausbetreuerstützpunkt.
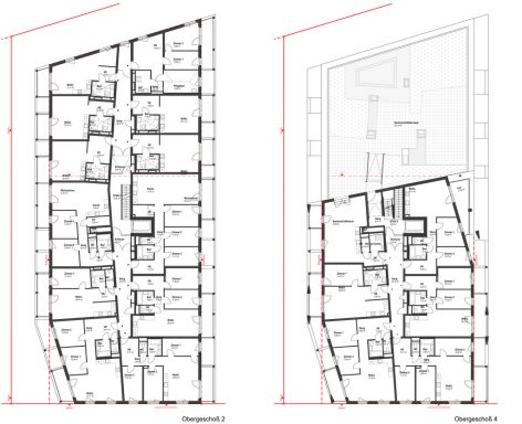
Die beiden nur von der Hausgemeinschaft nutzbaren Gemeinschaftsküchen bzw. Kinderspielräume liegen in den Obergeschoßen mit direktem Ausgang auf die Dachterrassen auf der Sockelzone.










