Wien 10., „Am Kempelenpark“ Planungsfeld P1
1. Platz gemeinsam mit querkraft architekten
einszueins architektur ZT GMBH
Krakauer Straße 19/2
1020 Wien
Bayer und Zilker Architektur ZT OG
Krakauer Straße 19/2
1020 Wien
einszueins architektur
einszueins architektur ZT GMBH
Krakauer Straße 19/2, 1020 Wien
Firmenbuchnummer : FN 487683g
Firmenbuchgericht :
Handelsgericht Wien
UID: ATU 732 72 825
Firmenbuchnummer : FN 282613h
Firmenbuchgericht :
Handelsgericht Wien
UID-NR : ATU 629 45 111
Die Inhalte auf www.einszueins.at werden zur Ansicht im Internet zur Verfügung gestellt und können für den persönlichen und privaten Gebrauch auch downgeloadet und kopiert werden. Wenn Sie beabsichtigen, die Inhalte gewerblich oder in anderer Art zu nutzen, verpflichten Sie sich, das Einverständnis von einzueins architektur im Vorhinein einzuholen.
Texte und Bilder auf www.einszueins.at sind geistiges Eigentum von einzueins architektur oder wurden von den jeweiligen Eigentümern zur Verfügung gestellt und sind somit urheberrechtlich geschützt.
einszueins architektur übernimmt trotz sorgfältiger inhaltlicher Kontrolle keine Haftung für die Inhalte externer Links. Für den Inhalt der verlinkten Seiten sind ausschließlich deren Betreiber verantwortlich.
Konzeption: einszueins architektur
Konzept & Gestaltung : buero bauer
Programmierung : 101
© einszueins architektur 2013-2020
1. Platz gemeinsam mit querkraft architekten

SOZIALE NACHHALTIGKEIT – BAUPLATZ, QUARTIER & STADT
Wir verbinden die Interaktionsebenen Bauplatz, Quartier und Stadt prozesshaft miteinander. Themen der sozialen Nachhaltigkeit und baufeldübergreifende Aspekte wie Freiraum, Energie, Mobilität und Nutzungen werden mit jeweiligem Fokus begleitet. Ziel ist es, Ressourcen und Potenziale im Quartier zu teilen und damit auch einen Beitrag zur Klimawende zu leisten.
Folgende Prozesse möchten wir unterstützen:
* Stakeholderprozess
Koordinationstreffen bis zum Bezug werden möglichst im Quartiersmanagement fortgesetzt.
* Besiedelungsprozess am Bauplatz
Das Ankommen der Bewohner:innen wird möglichst früh vor Übergabe begleitet, ermöglicht Teilhabe und stärkt Kompetenzen für klimagerechte Alltagsgestaltung.
* Quartiersmanagement
unterstützt den Betrieb des Quartiers, entlastet Hausverwaltungen und involviert Bewohner:innen.
* Anbindung an den Stadtteil
Vernetzung der Bewohner:innen mit Bezirk und Nachbarschaft.
ENSEMBLE AM KEMPELENPARK
Die beiden Häuser bilden ein Ensemble aus drei Türmen und zwei grünen Gelenken. Klare Kanten und eine differenzierte Gestaltung der Volumina machen diese gut ablesbar und verstärken die Plastizität.
Die Fassaden der Türme werden in ein weißes Kleid aus Sonnenschutz und Schiebeelementen gehüllt. Die Textile Struktur fungiert als Filter zum Park und verleiht denn Gebäuden eine Eleganz mit räumlicher Wirkung.
GRÜNES KRAFTWERK
Die grünen Gelenke erhalten Fassadenbegrünung aus Trögen und intensiv begrünten Gemeinschaftsterrassen mit integrierter Bewässerung aus Regen- und Grauwasser. Die obersten Dächer werden extensiv begrünt und mit PV belegt. Optionale Fassaden PV Richtung Süden rundet das grüne Kraftwerk ab.

ZWEI PLÄTZE ALS EINGANG ZUM QUARTIER
Aktive Erdgeschoße mit hoher Transparenz aktivieren die urbanen Eingangsplätze im Quartier. Baumpflanzungen in erhöhten Beeten mit Sitzmöbeln und Schwammstadtelementen machen die Plätze klimafit. Dreiecksplätze entlang des Fuß- und Radweges an der Bahn attraktivieren den Weg mit begleitenden Aufenthalts- und Spielbereichen sowie Hauszugängen und Durchwegung zum Park.
ERSCHLIESSUNG
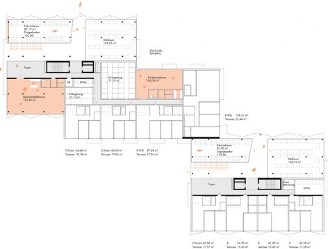
Die innere Erschließung der Gebäude ist kompakt organisiert. Zwei Kerne erschließen alle 184 Wohnungen in den Wohngebäuden, sowie die Sonderwohnformen Smart Wohngemeinschaften oder eine Clusterwohnung im EG und die Einlagerungsräume im Geschoss. Das Gewerbehaus wird mit nur einem kompakten Kern erschlossen. Das schafft maximale Effizienz und höchste Flexibilität – auch für spätere Nutzungen.

GEMEINSAME NACHBARSCHAFT
Die bauplatzübergreifenden Gemeinschaftsräume für die Hausgemeinschaft und die Nachbarschaft bilden eine lebendige Eingangssituation in den Kempelenpark. Sie begrüßen im Grätzl, informieren Besucher:innen, fördern Gemeinschaft und bieten zusätzlichen Platz neben Büros und Wohnungen.
FLEXIBILITÄT DURCH KLARE STRUKTUR
Eine einfache Struktur schafft ein flexibles Rückgrat für das Gebäude. Tragende Bauteile werden in ein effizientes Büro-Stützenraster aufgelöst, in dem aktuelle und zukünftige Nutzungseinheiten frei verteilt werden können.

GROSSRAUMBÜRO
Durch die größere Raumhöhe können ganze Geschoße als moderne Großraumbüros mit zentraler Erschließung und bis zu 1.250 m2 Nutzfläche konfiguriert werden.
KLEINERE UND GRÖSSERE EINHEITEN
Gewerbeflächen mit Größen von 150-200 m2 können durch den Einsatz eines einzigen zusätzlichen Gangs flächeneffizient konfiguriert werden.


